Печь для бани Grill'D Zorro Long
6ef7b2459c20
Доставка в Самара
Удобство оплаты
Почему звонить в Очаг уже сейчас?
- Единая цена по всей России
- Бесплатная доставка
- Понимаем любой бюджет
- Считаем ВСЕ варианты
- Инструкции и видео для Монтажа
- Доступно, Оперативно, Профессионально
- Более 2 000 монтажей за 17 лет
Примеры работ #Степан_Знает
Видео галерея
Описание
Характеристики
Общие
Производитель:
Страна-производитель:
Россия
Материал печи:
Нержавеющая сталь
Серия:
Zorro
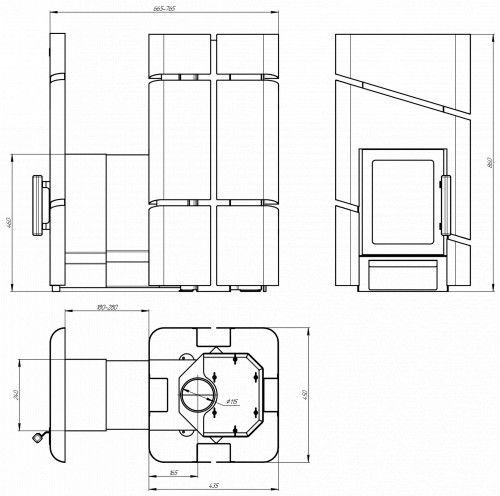
Размеры
Макс. длина поленьев:
39 см
Масса камней:
135 кг
Общая длина:
765
Диаметр дымохода:
115 мм
Общая ширина:
450 мм
Общая высота:
860 мм
Общий вес:
64 кг
Производительность
Объём парной:
16 м³
Особенности
Бак для воды:
Опционально
Дверь со стеклом:
Закладка дров:
Облицовка из камня:
Нет
Особенность конструкции:
Открытая каменка
Теплообменник:
опционально












