Каминная топка Romotop Heat 3G L 66.50.01
11024be84360
Доставка в Самара
Удобство оплаты
Почему звонить в Очаг уже сейчас?
- Единая цена по всей России
- Бесплатная доставка
- Понимаем любой бюджет
- Считаем ВСЕ варианты
- Инструкции и видео для Монтажа
- Доступно, Оперативно, Профессионально
- Более 2 000 монтажей за 17 лет
Примеры работ #Степан_Знает
Видео галерея
Описание
Характеристики
Общие
Производитель:
Страна-производитель:
Чехия
Остекление:
Материал корпуса:
Материал топки:
- Вермикулит
Конструкция топки:
Стекло с подъемом вверх:
Да
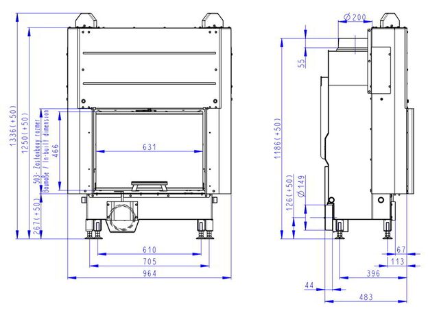
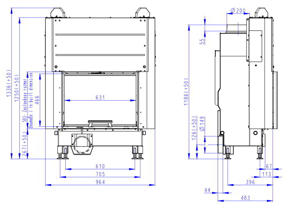
Размеры
Диаметр дымохода:
200 мм
Общая ширина:
964 мм
Общая глубина:
548 мм
Общая высота:
1336 мм
Общий вес:
230 кг
Высота рамки:
466 мм
Ширина рамки:
631 мм
Производительность
Мощность:
7 кВт
КПД:
85%
Площадь отопления:
70 м²
Объем отопления:
175 м³
Использование для отопления:












