Каминная топка Spartherm A-3RL80H
2470dccb3291
Доставка в Самара
Удобство оплаты
Почему звонить в Очаг уже сейчас?
- Единая цена по всей России
- Бесплатная доставка
- Понимаем любой бюджет
- Считаем ВСЕ варианты
- Инструкции и видео для Монтажа
- Доступно, Оперативно, Профессионально
- Более 2 000 монтажей за 17 лет
Примеры работ #Степан_Знает
Видео галерея
Описание
Характеристики
Общие
Производитель:
Страна-производитель:
Германия
Остекление:
Материал корпуса:
Материал топки:
- Керамика
Конструкция топки:
Боковое стекло:
Трёхсторонняя
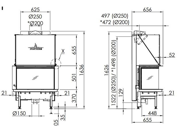
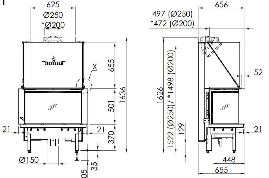
Размеры
Диаметр дымохода:
250 мм
Общая ширина:
972 мм
Общая глубина:
656 мм
Общая высота:
1626 мм
Общий вес:
337 кг
Ширина рамки:
792 мм
Производительность
Мощность:
12 кВт
КПД:
80%
Площадь отопления:
120 м²
Объем отопления:
300 м³
Использование для отопления:












