Каминная топка Astov П2С 600
acb0661d097b
Доставка в Самара
Удобство оплаты
Почему звонить в Очаг уже сейчас?
- Единая цена по всей России
- Бесплатная доставка
- Понимаем любой бюджет
- Считаем ВСЕ варианты
- Инструкции и видео для Монтажа
- Доступно, Оперативно, Профессионально
- Более 2 000 монтажей за 17 лет
Примеры работ #Степан_Знает
Видео галерея
Описание
Характеристики
Общие
Производитель:
Страна-производитель:
Россия
Остекление:
Материал корпуса:
Материал топки:
- Шамот
Конструкция топки:
Боковое стекло:
Справа
Размеры
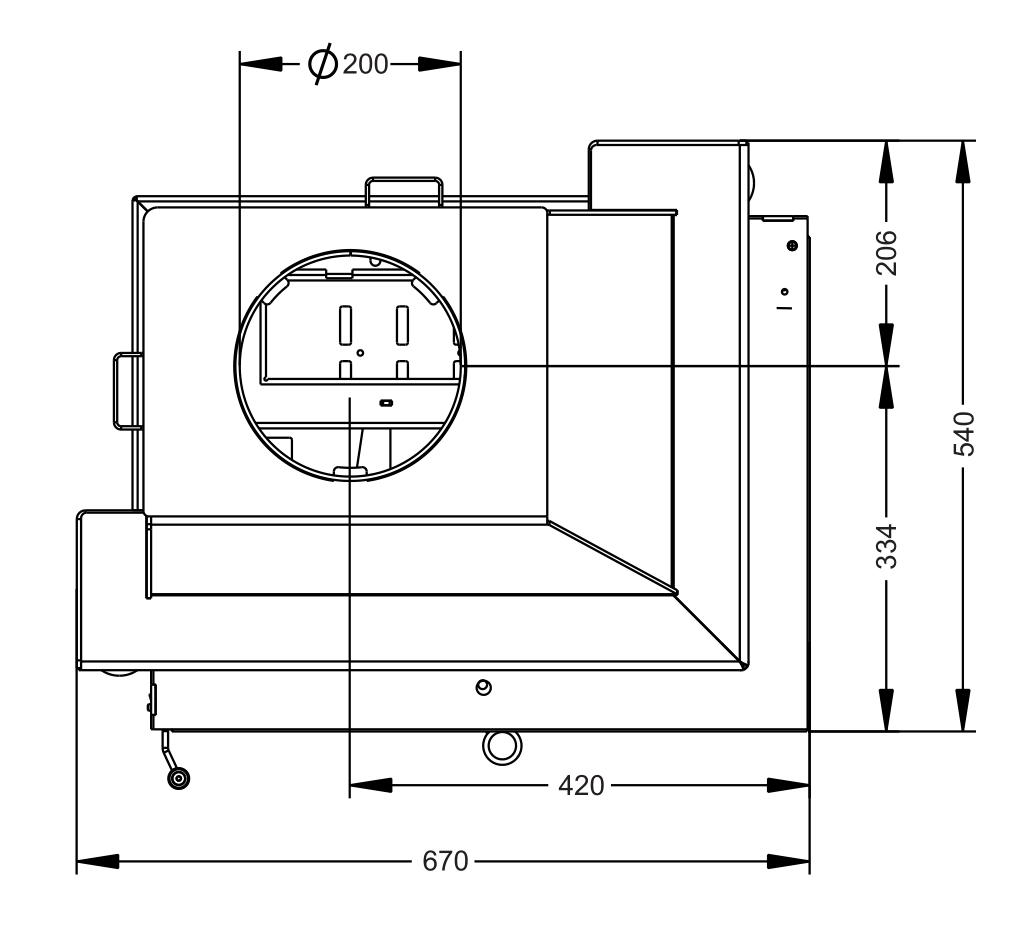
Диаметр дымохода:
200 мм
Общая ширина:
670 мм
Общая глубина:
540 мм
Общая высота:
1226 мм
Общий вес:
150-170 кг
Высота рамки:
570 мм
Ширина рамки:
600 мм
Производительность
Мощность:
6 кВт
КПД:
75%
Площадь отопления:
60 м²
Объем отопления:
150 м³
Использование для отопления:












