Каминная топка Astov П2С 700
be711a3d4302
Доставка в Самара
Удобство оплаты
Почему звонить в Очаг уже сейчас?
- Единая цена по всей России
- Бесплатная доставка
- Понимаем любой бюджет
- Считаем ВСЕ варианты
- Инструкции и видео для Монтажа
- Доступно, Оперативно, Профессионально
- Более 2 000 монтажей за 17 лет
Примеры работ #Степан_Знает
Видео галерея
Описание
Характеристики
Общие
Производитель:
Страна-производитель:
Россия
Остекление:
Материал корпуса:
Материал топки:
- Шамот
Конструкция топки:
Боковое стекло:
Сбоку
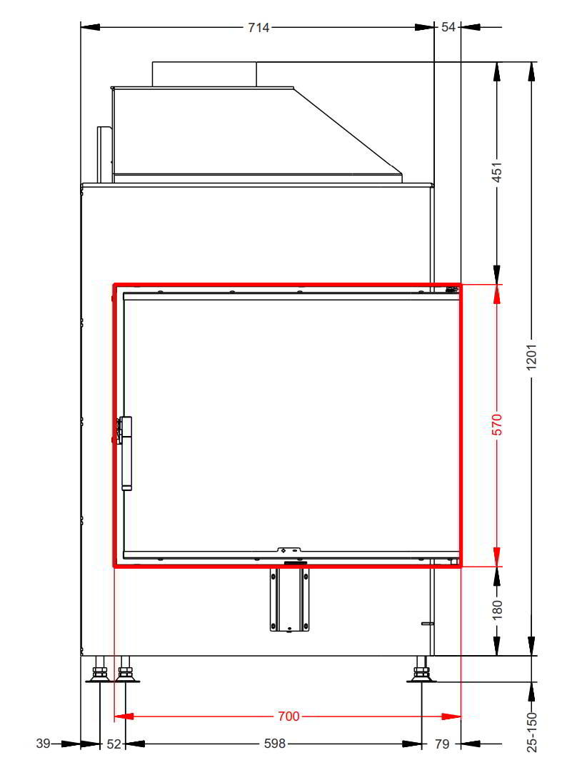
Размеры
Диаметр дымохода:
200 мм
Общая ширина:
770 мм
Общая глубина:
540 мм
Общая высота:
1226 мм
Общий вес:
180-220 кг
Высота рамки:
570 мм
Ширина рамки:
700 мм
Производительность
Мощность:
7 кВт
КПД:
80%
Площадь отопления:
70 м²
Объем отопления:
175 м³
Использование для отопления:












