Печь-камин Romotop Navia металл
5b8fefdba697
Доставка в Самара
Удобство оплаты
Почему звонить в Очаг уже сейчас?
- Единая цена по всей России
- Бесплатная доставка
- Понимаем любой бюджет
- Считаем ВСЕ варианты
- Инструкции и видео для Монтажа
- Доступно, Оперативно, Профессионально
- Более 2 000 монтажей за 17 лет
Примеры работ #Степан_Знает
Видео галерея
Описание
Характеристики
Общие
Производитель:
Страна-производитель:
Чехия
Материал отделки:
Материал топки:
- Керамика
Тип печи:
Цвет:
Металл
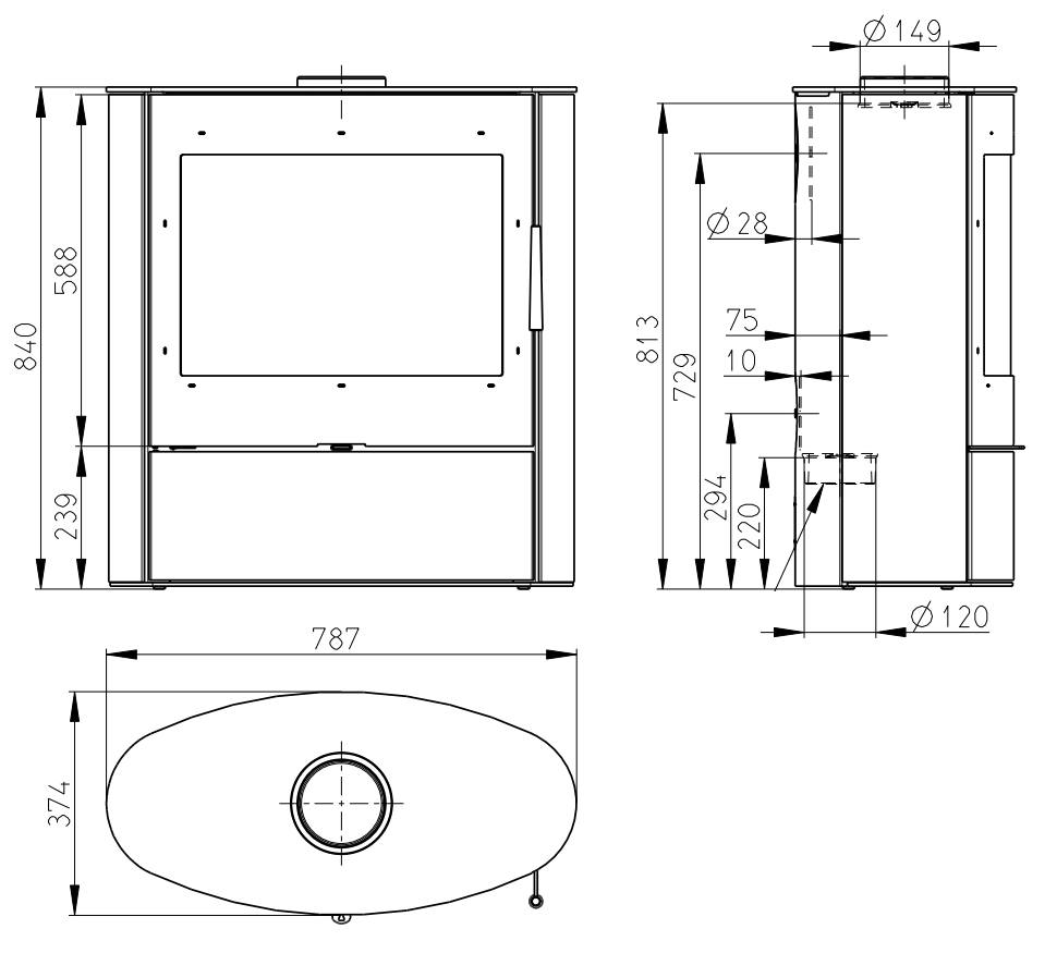
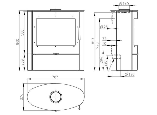
Размеры
Диаметр дымохода:
150 мм
Общая ширина:
787 мм
Общая глубина:
374 мм
Общая высота:
840 мм
Общий вес:
157 кг
Производительность
Мощность:
5,4 кВт
КПД:
83,5%
Площадь отопления:
60 м²
Объем отопления:
150 м³
Использование для отопления:












